
介绍HP ProLiant的配置和安装方法.
配置原理: HP ProLiant DL160 G5服务器板上有8个内存插槽,并且最多支持32GB内存配置(单根4G). 具体的使用方法遵循以下原则:
1)该服务器仅通过FECC(全缓冲内存模式)PC2-5300 DDR2 667 MHz内存进行了ECC高级验证.
2)对于两个处理器的服务器型号(安装了两个CPU),两个处理器的型号必须相同.

3)通道中的内存模型必须相同.
4)支持的单个内存大小为: 512 MB,1 GB,2 GB和4 GB.
5)配置方法: 在插槽1、3中安装两个RAM;在插槽1中安装两个RAM. 在插槽1、3 \ 5和7中安装四个RAM,组1、3的内存模型必须相同,组5和6的内存模型必须相同;八个公羊分别安装在1,3 \ 5,7 \ 2,4 \ 6,8中.
6)内存插槽板载地图


注意:
1-内存插槽#XMM1 2-内存插槽#XMM8.
如何安装和卸载


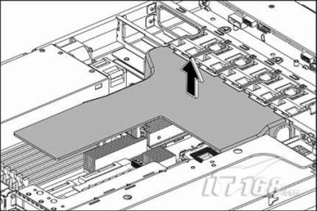
在安装和卸载内存之前,请先卸下内存上的通风管.

卸载内存应完全打开内存扣并均匀地拉出内存.


在安装内存时,请先检查内存与插槽之间的间隙,将内存均匀地插入插槽中,然后再检查以关闭扣环.

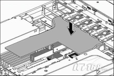
在安装和卸载内存后,将风管重新安装到原始位置
本文来自电脑杂谈,转载请注明本文网址:
http://www.pc-fly.com/a/shoujiruanjian/article-303786-1.html
装备宙斯盾系统
他对淘宝的假货