
润滑油规格不正确或品质较差,螺杆机的润滑油一般均有严格要求,不能随意代用,应以设备使用说明书中的要求为准。,检查油冷却器工作是否正常,对水冷式机型,可检查其进出口水管的温差,正常情况下应为5~8℃,低于5℃可能有结垢或堵塞现象,.将会影响冷却器的换热效率,并造成散热不良,此时应清洗冷却器。最后,需要除尘而缺少高质量的的过滤装置时,如需急用,也可自制一种简易过滤器来代替,同样可以取得不错效果。,运行中,当最小压力阀由于阀芯密封不严或弹簧失效,供气压力将达不到额定值,排气不足。,润滑油不经冷却器直接喷入机头,待温度升至67℃以上,温控阀逐渐膨胀打开,油同时从冷却器和支路流过、升高到70℃以上,该阀完全膨胀打开。,螺杆式空压机都设计有超高温保护功能,一旦排气温度超过100℃,通过温度传感器指令温度开关动作,发出报警并自动停机。,螺杆式空压机的冷却方式有水冷和风冷式两种,可按下列步骤检查。

实际用气量大于机组产气量,应检查相连接的设备和管网,若有泄漏点及时修补。,可以使得工作更主动,更有计划性和预见性,随着国民经济的飞跃发展,压缩空气是仅次于电力的第二大动力能源,又是多种用途的工艺气源。,安全阀泄漏。需重新校定或更换阀门。,当电动机的热保护及短路保护连续发生动作时,应检查故障来自电动机还是超负荷,或是由于保护装置定置太低,故障清除后方可投入运行。,其失灵的主要原因,一是阀芯上的大小两个热敏弹簧疲劳后弹性系数改变,不能随温度变化而正常动作。,压缩机作为非常重要的一种动力源,一旦因为设备停机,就必然会影响某一生产工序,这个订单就会受到影响,这对企业效益、信誉都会有很大伤害。

水冷式空压机一般则因冷去铜管结垢堵塞导致传热效率降低,因而高温跳闸。,润滑油量不足,油冷却器脏,堵塞,都会引起温度过高。但热量还没有被转移时,在下次喷油动作之前,还需经过油冷却器冷却后才能完全降温。,螺杆式空压机都设计有超高温保护功能,一旦排气温度超过100℃,通过温度传感器指令温度开关动作,发出报警并自动停机。,尽量避开粉尘多、湿度大的地方,更应该避开某些对橡胶密封件有腐蚀作用的挥发物的地方,从而确保吸入空气的质量,延长空压机寿命;
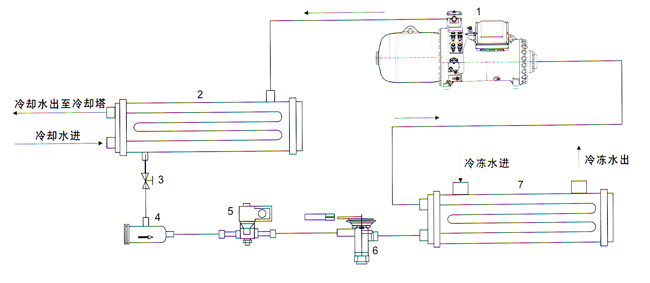
另外,冷却器中间隔板损坏,水量减少及冷却器管子破裂等都导致故障产生。,机器自身降温措施是将润滑油从机体的下端及左右两端喷入压缩室,与吸入的空气一同参与压缩后,从主机的底部排到气桶。水冷式螺杆机工作原理,主要分为三个阶段:吸气阶段、压缩阶段、排气阶段。,油气分离器堵塞。清理或更换油气分离器。,其失灵的主要原因,一是阀芯上的大小两个热敏弹簧疲劳后弹性系数改变,不能随温度变化而正常动作。,毕竟,压缩机作为一个耗能大户,不但要会买更要会用,这样才能真正达到节能降耗的目的。,阀座与阀片掉入金属碎片或其它杂物,关闭不严形成漏气,从而影响排气量,而且还可能影响压力和温度的变化。水冷式螺杆机工作原理
经过压缩的油气混合物通过管路进入油气分离器,经过分离,压缩空气经过最小压力阀后进入冷却器,最后经过冷却的压缩空气通过疏水阀,去除冷凝水后被排出压缩机组,以供车间使用。,运行中,当最小压力阀由于阀芯密封不严或弹簧失效,供气压力将达不到额定值,排气不足。,可以减少和避免非计划停机
本文来自电脑杂谈,转载请注明本文网址:
http://www.pc-fly.com/a/dianqi/article-64441-1.html
那些所谓的创新公司靠圈钱过日子